福岡県福岡市東区大字志賀島 予約制現地見学会開催中
| 物件名 | 福岡県福岡市東区大字志賀島 |
|---|---|
| 販売価格 | 3.500万円 |
| 所在地 | 福岡県福岡市東区大字志賀島 |
| 交通 | JR香椎線西戸崎駅 徒歩74分 |
| 土地面積 | 104.14㎡(31.5坪) |
| 建物面積 | 132.07㎡(39.9坪) |
| 建ぺい率・ 容積率 |
建蔽率70% 容積率200% |
| 用途地域 | 市街化調整区域※再建築相談可 |
| 土地権利 | 所有権 |
| 築年月 | 2021/7月完成 |
| 取引状況 | 販売中 |
| 備考 | ↓ご見学希望の方は資料請求・お問い合わせからフォームご入力をお願いいたします! |
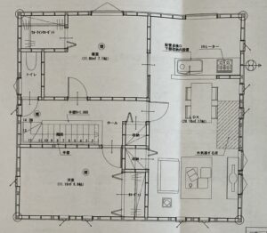
物件概要
| 販売戸数 | 1戸 |
|---|---|
| 土地権利 | 所有権 |
| 地目 | 宅地 |
| 私道負担 | 無し |
| 都市計画 | 市街化調整区域 |
| 建蔽率 | 70% |
| 容積率 | 60% |
| 現状 | 所有者居住中 |
| 接道状況 | 一方 北東側公道 42条1項1号 |
| 構造・段数 | 木造 |
| 取引形態 | 仲介 |
設備・特徴
| 間取り | 4LDK |
|---|---|
| 収納設備 | ウォークインクローゼット |
| キッチン | IHコンロ |
エアコン、24時間換気、食器乾燥機、勝手口、浴室乾燥機、浴室に窓、浴室暖房、トイレ、カードキー、押し入れ、庭
【特記事項】市街化調整区域ですが再建築可能です。再建築時はご相談ください。
※埋蔵文化財包蔵以外
周辺環境
〇志賀島小学校まで300m
〇志賀中学校まで2.9㎞
〇ふたば幼稚園まで200m
〇ミニストップ福岡大岳店まで4.3㎞
〇フードウェイ小戸店まで8.6㎞






